Windows
French Doors
Patio Doors
Front Doors
Roller Shutters
Window Sills
Sign in
Contact us































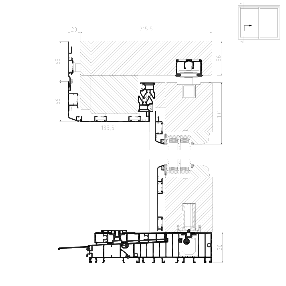
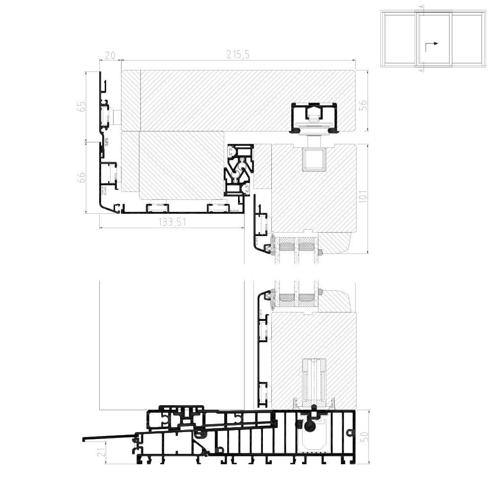
Please note that these are standard drawings. If you would like to know, before ordering, exactly which profiles, models, and components will be used, just contact us on +49 711 860 60 200 or via e-mail at info@windows24.com. Our experts will be happy to help you with configuring your product and to answer any questions.